

The Captiosa 352 offers Bonus Guest Bedroom – Spacious Living Area
This beautiful home offers plenty of space for your Family and Friends.
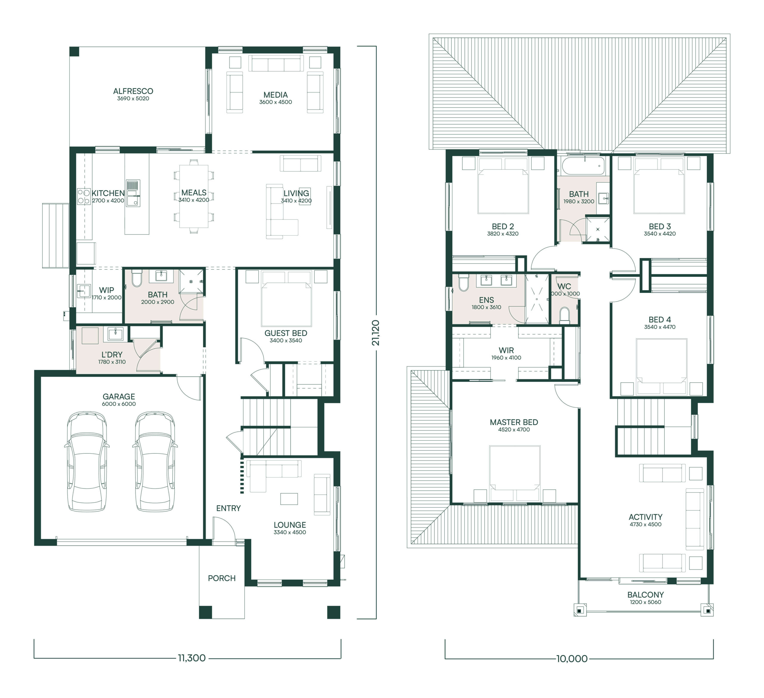
The welcoming entry takes you through via the Large Study or Office – great for working from home or the extra visitor’s room
Past large guest bedroom onto the open plan Kitchen, Living and Meals area.
This extra large Kitchen is accompanied by the enormous Butler’s Pantry
The magnificent Media Room has plenty of space for large lounge, movies, kids room or just an escape !
Expansive sliding doors guide you through to the amazing Alfresco .
The large Master bedroom leads to the enormous Shower and Double Vanity Ensuite with Expansive Walk-in Robe!
Lifestyle INCLUSIONS
Hamptons Facade
2550mm ceiling heights throughout
20mm engineered stone benchtops to Kitchen
Soft close doors and drawers to Kitchen, Ensuite, Bathroom & Laundry
600mm Omega appliances incl stainless steel dishwasher
Split air conditioning to living & main bedroom
LED downlighting throughout
Tiled flooring throughout Living & Office
Carpets to Bedrooms & Media
Ceiling fans throughout incl to Alfresco
7-Star heat pump hot water service.
R3.5 ceiling batts to home incl alfresco and garage
R2.0 wall batts to external timber frame walls incl garage wall
H class concrete slab
Exposed aggregate concrete path from Laundry to clothesline, porch & alfresco
Letterbox w/ numbers & TV Antenna
Exposed aggregate concrete driveway
WATTLE COURT – Homes built for Life
Building for more than 40 years and local to the Sunshine Coast.
For further information contact Ian today on 0411 481 345 to help you with your house and land.
Harmony Estate….has so much to offer.
Tree-lined streets that connect to existing paths that guide you to the Sports Field, parks and schools. A place for life, for family and to build your future.
Secure your piece of the good life in beautiful Aura Estate!
*Images are for display purposes only and are indicative. These images may not represent the actual finished product and are subject to change without notice*
*Terms and conditions apply..Price is based on the standard plans and specifications, standard inclusions and preferred building surveyor. Final pricing is subject to final soil test, contour surveys, engineering and selections. Price does not include registration fees or additional costs that may be incurred under the Building Contract ie. due to delays in titling of the lot, or any incidental fees associated with the acquisition of land or a home or the construction of a home.
Images may contain upgraded items not included and images used in this listing are for illustrative purposes only and to be used as a guide.
Experience the unparalleled craftsmanship of a Wattle Court home for yourself. Schedule a visit to walk through our display home today.
Whether you're a first-time homebuyer or looking to upgrade, our team is here to guide you every step of the way. Contact us today to explore your options and start creating a space that’s uniquely yours.
Contact our Consultant to enquire about this package
Ian Powley - 0411 481 345
This will helps us show you the local builders, home designs, display centres, and house & land packages that are most relevant to you.